
Oops, already shared this one... let's try something else.

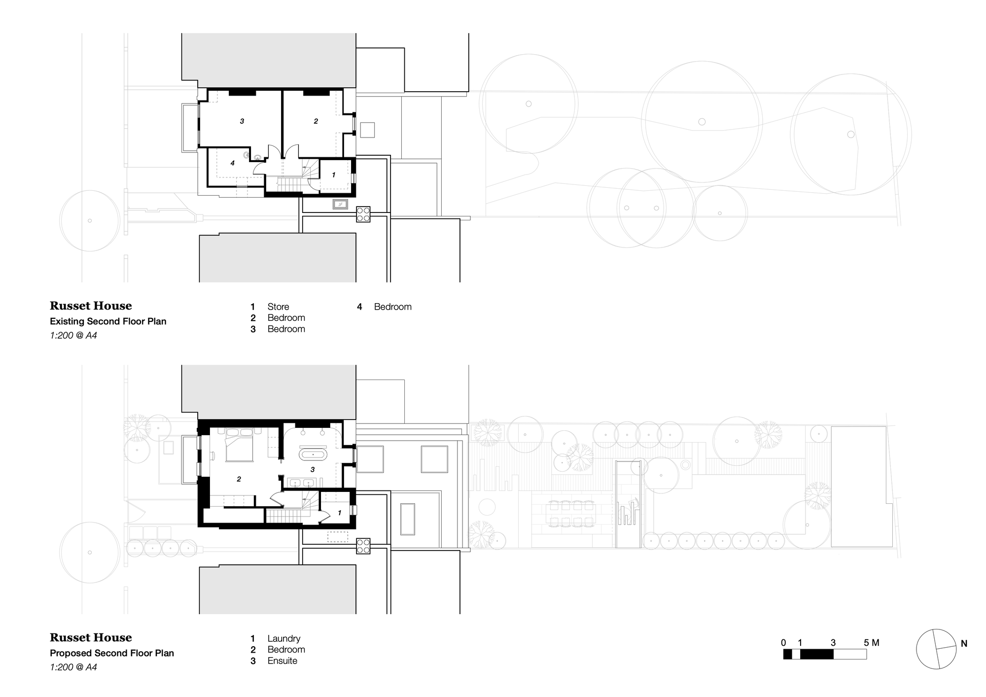
Swiss Cheese house

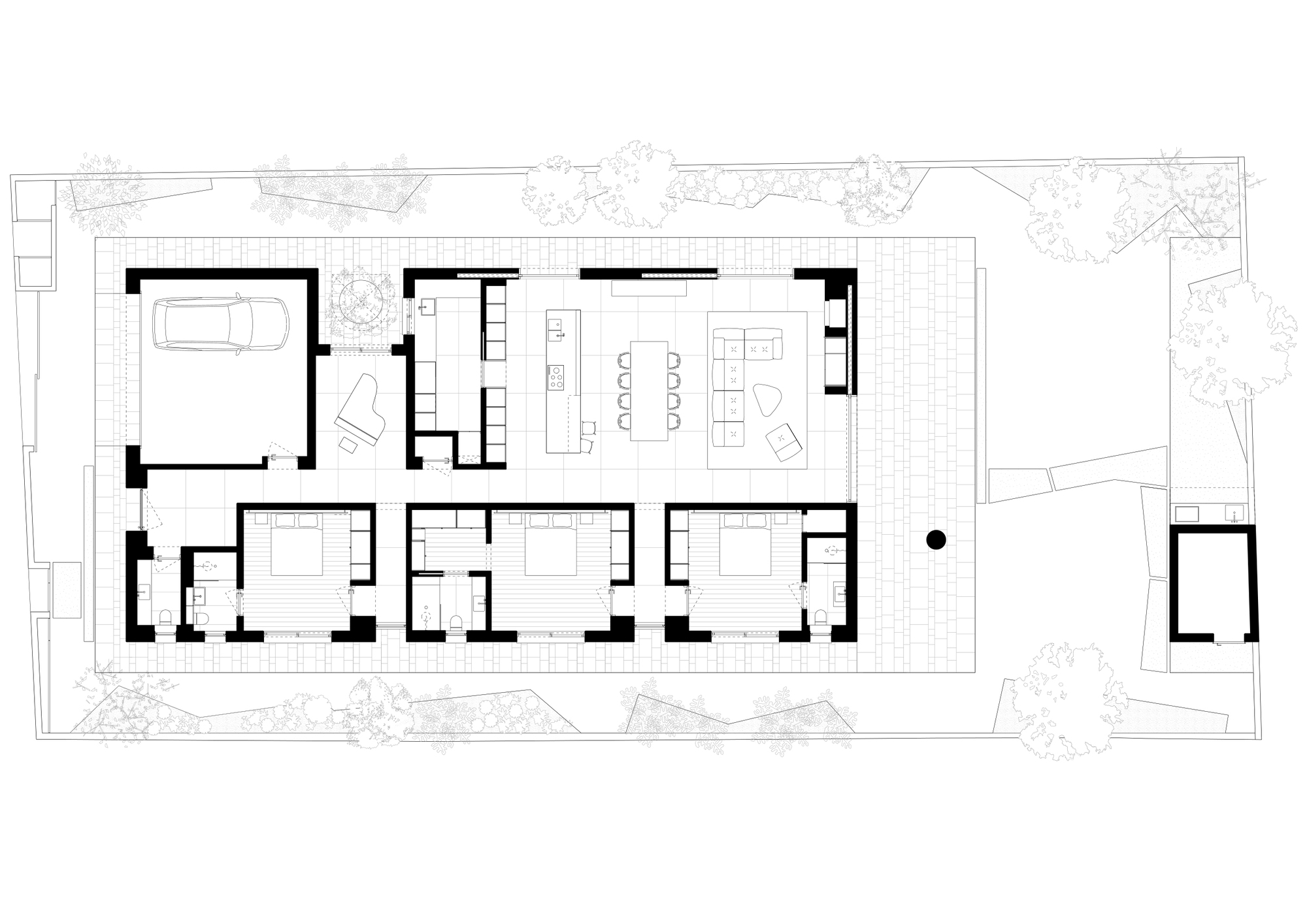
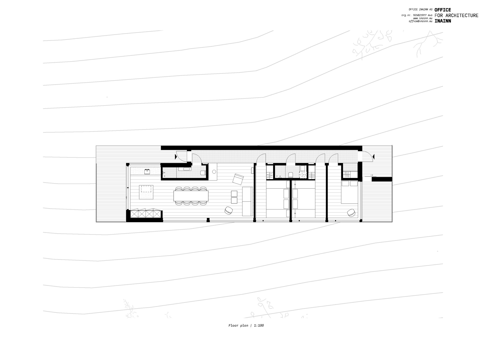
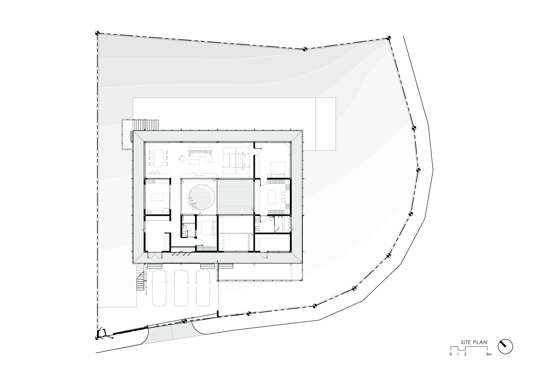
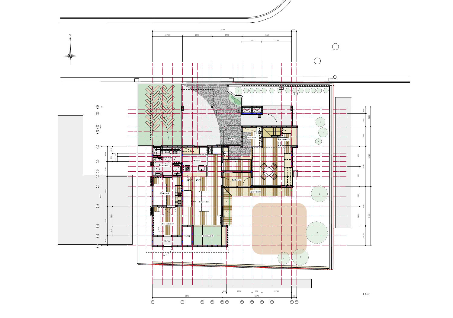
Cloud House #architecture Architects: ROOM+ Design & Build Area: 360 m² Year: 2025 Photographs: Sonmeo Nguyen Art Studio Lead Architects: Vinh Phuc Ta Design Team: Bao Loc Hoang, Tan Trung Ta, Duc Truong Nguyen Technical Team: Ngoc Phi Duong, Trung Diep Dat Lead Team: Ngoc Bich Phuong Thai Country: Vietnam

Starbucks / hotel vibes, but I'm liking it!

Quick announcement: I've started another npub for all things lifestyle (furnishings, interior design etc...) if you're into that sort of thing, please check out Thank you for your attention to this matter!

This is all part of the marketing flywheel for the construction company. They don't want cluttered looking houses, so they stage them minimally. That goes into their portfolio to get future work.

The world might, until they realize what's happening with their data. What makes you say the LLM community is moving to Chinese AI models? Have a reference for that? I haven't heard anyone use any of the Chinese models besides from trying them out once or twice. Most developers still use Anthropic and most corpos I know of still use chat gpt.

These photos are usually taken immediately after construction or renovation. The objects you see in the house are usually staged by the company doing the work. It's not what people typically have... they eventually load all their garbage in and it looks nothing like the photos.

I don't get it... you admit that they copied Apple, but then turn around and say build better products? They did build a better product, supposedly, because they got copied exactly. On specs it's far from the best, but that has never been Apple's selling point - which every other manufacturer doesn't seem to understand. Also, no one wants Chinese smart devices because it's impossible to tell what they do with your data. Probably copy it in real time, straight to regime databases.

Indeed!

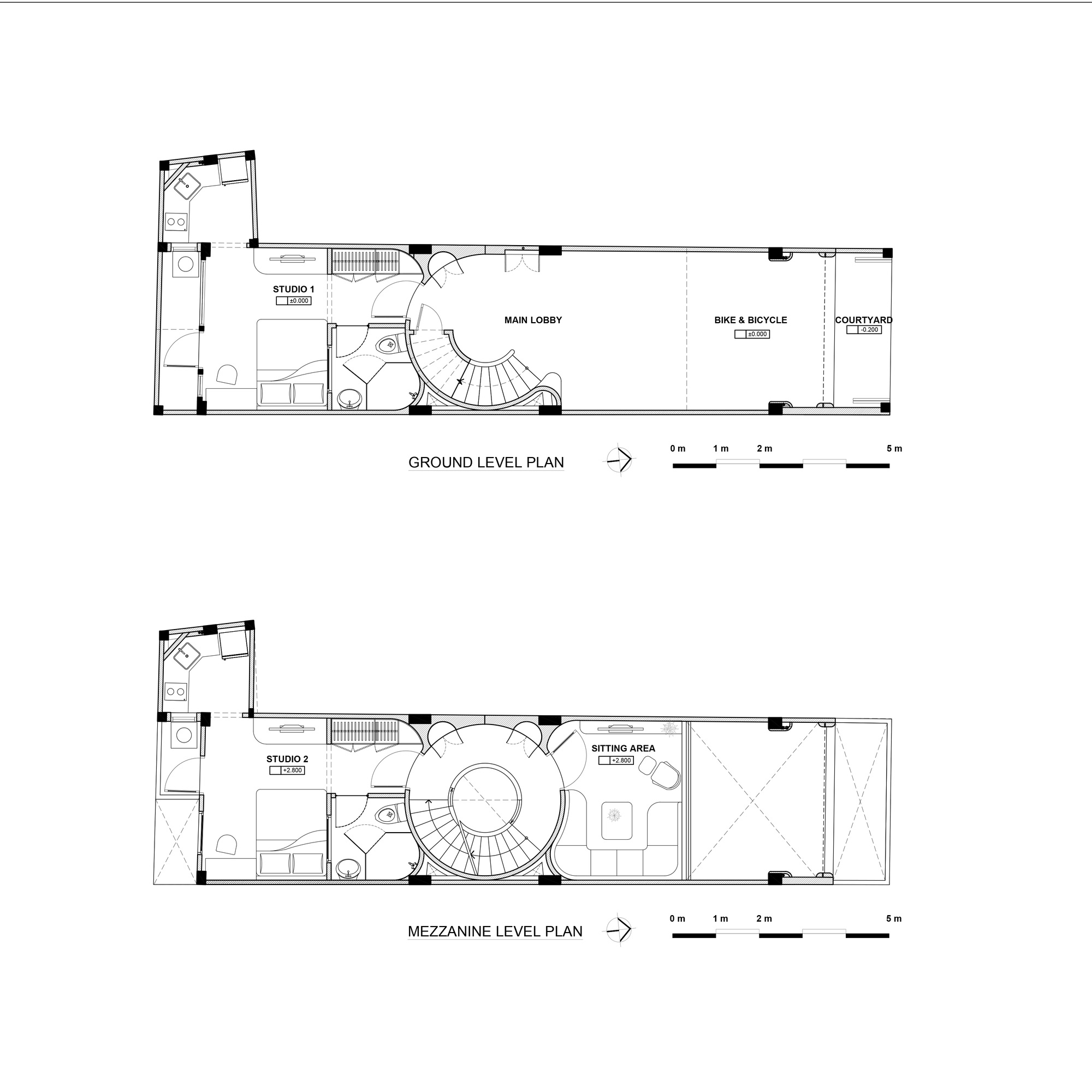
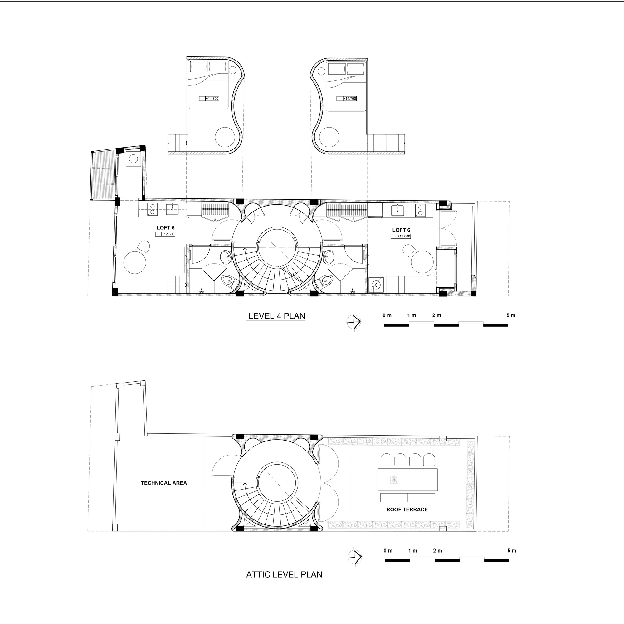
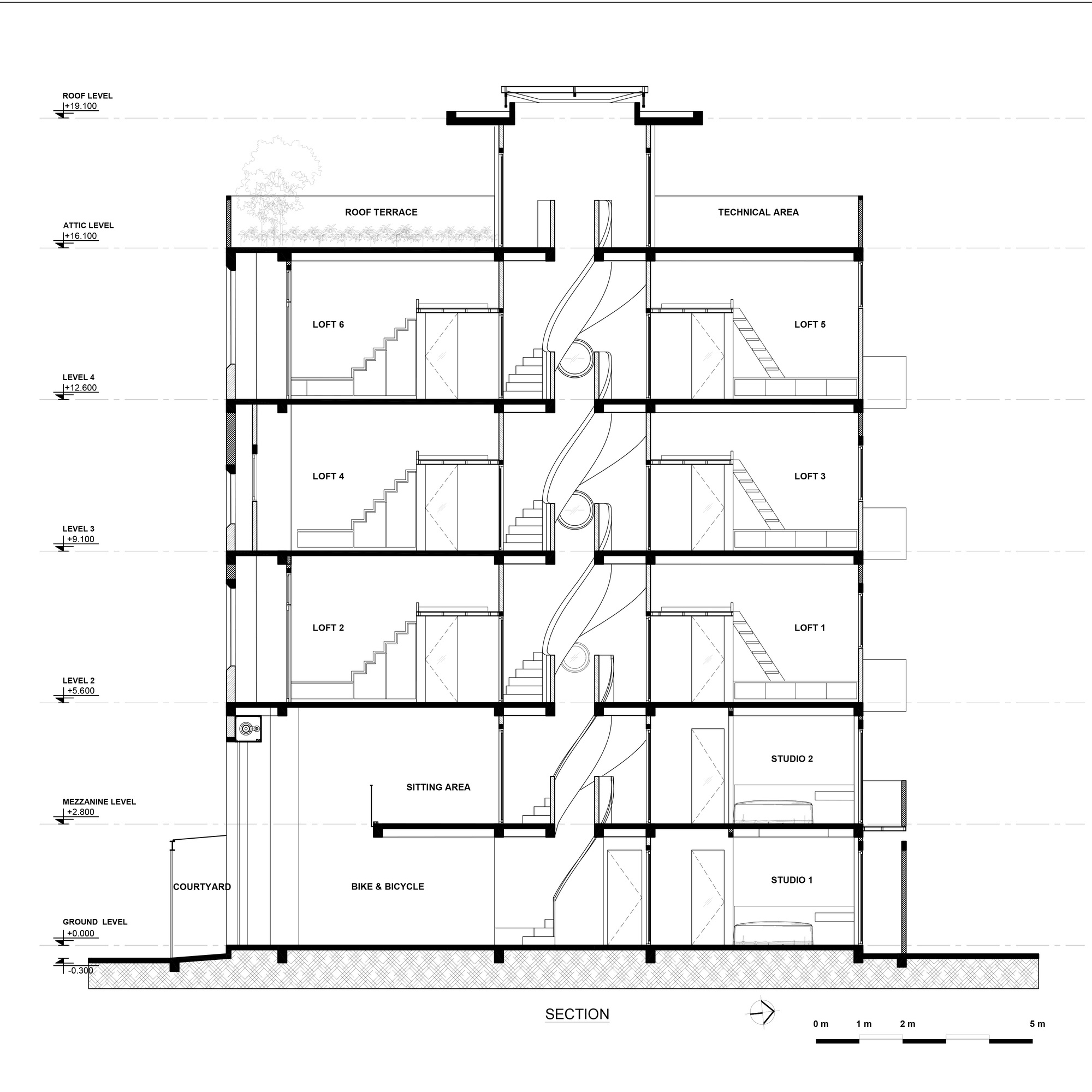
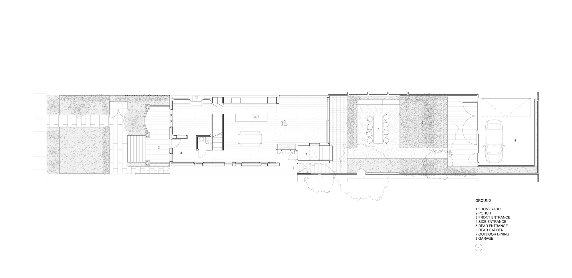
House Moro #architecture Architects: TAM - Guillermo Elgart Area: 220 m² Year: 2024 Photographs: Obra Linda, Jonathan Paz Lead Architects: Guillermo Elgart, Juan Albarenque Design Team: Juan Icarde, Delfina Diaz, Fiorela Colautti City: Mar del Plata Country: Argentina

Some people like grey, I don't see a problem with that. Your house should make you happy so whatever color does that for you, go for it!

Ty sir, you rock!

There'e no easy way currently to ensure your content is served within a feed. Hashtags are abused constantly.

Umm, I didn't zap anyone 200k sats... this is wrong.

I've been sharing architecture content and have been getting zapped for it. It's Flash news and some others also get zapped all the time, so it's not only the bitcoin content getting zapped.

a monetary network... bro.
Welcome to Architecture Daily spacestr profile!
About Me
Your daily dose of architecture.
Interests
- No interests listed.